Moderner Neubaukomfort - Geschmackvolle Eigentumswohnungen

Die perfekte Verbindung aus ruhiger Lage und ansprechender Architektur.

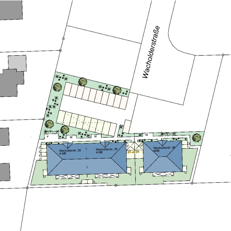
Das klassisch-moderne Gebäude mit nur 8 Wohnungen fügt sich harmonisch in das neue Wohngebiet an der Hagener Straße ein.

Die begehrte Wohnlage wird insbesondere durch die sehr gute infrastrukturelle Anbindung gekennzeichnet. Alle Nahversorgungseinrichtungen des täglichen Bedarfs wie Lebensmittelmärkte, Frisör, Gastronomie, Ärzte und Banken befinden sich in der Nachbarschaft.

Die Drei-Zimmer-Wohnungen bestechen durch eine klare Grundrissgestaltung – mit lichtdurchflutetem Wohn-, Ess- und Kochbereich. Die Bäder werden mit einer bodengleichen Dusche sowie Badobjekten namhafter Hersteller ausgestattet. Ein Hauswirtschaftsraum bietet Platz für Vorräte und Anschlüsse für Waschmaschine und Wäschetrockner.

Südterrassen (mit eigenem Gartenanteil) und Südbalkone sind weitere wesentliche Merkmale der hier entstehenden Wohnungen.

Die Ausstattung wird geschmackvoll und hochwertig. Einzelraumgesteuerte Fußbodenheizung, eine moderne und effiziente Haustechnik mit komfortablem Lüftungssystem, dreifachverglaste Fenster, elektrisch betriebene Rollläden, Feinsteinzeug, Maler- und Bodenbelagsarbeiten, Videogegensprechanlage uvm. sind inklusive.

Die Wohnungen sind durch ihre beliebten Größen zwischen rund 69 und 79 m² und der umfangreichen Ausstattung ideal, auch als Kapitalanlage zur Vermietung geeignet.

Bezugsfertig werden die Wohnungen im Februar 2025.

Fordern Sie gleich Ihr unverbindliches Exposé an!

 

 




« zurück zur Übersicht